M.. 노래방
ㆍ상업공간
design concept : "뮤직스테이션" 노래방...
럭셔리 테마 노래방...여인, 가족, 동료와 함께 즐거운 파티공간...
point :
테마별 룸 구성 (엔틱, 젠, 카페)
interior 구성 :
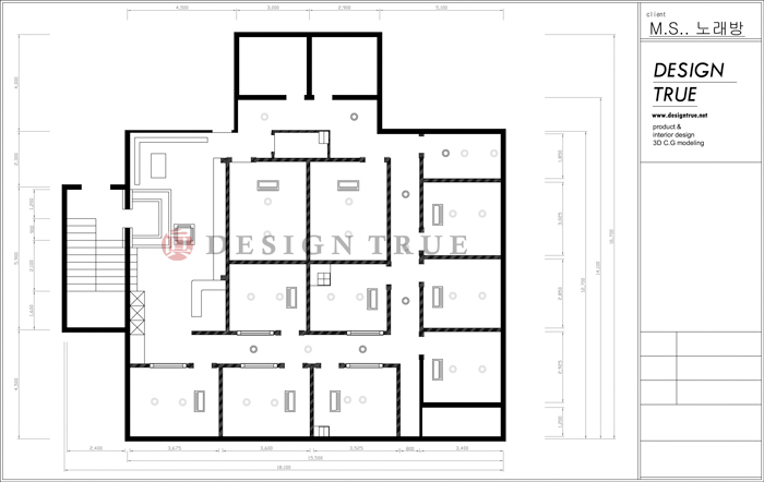
총 65평, 인포, 노래방10EA, 직원실, 탕비실, 화장실, 대피공간...
"DESIGN TRUE" work...
-현장컨설팅, 현장실측, 디자인(C.G), CAD도면(평면도&입면도), 견적서, 시공 내역서, 시공 스케줄표.
-시공- "디자인트루"시공 (관리/감도, 감리, 소장)
*디자인트루 사이트에 게재된 디자인/시공/3D C.G/CAD 관련 이미지 및 디자인의 저작권은 디자인트루 본사에
있으므로 불법도용으로 인한 민형사상 법적 책임을 질 수 있습니다.










-Room 엔틱-


-Room 젠-


-Room 카페-










-concept design 3D C.G..


















-CAD-

-시공중-






*디자인트루 사이트에 게재된 디자인/시공/3D C.G/CAD 관련 이미지 및 디자인의 저작권은 디자인트루 본사에
있으므로 불법도용으로 인한 민형사상 법적 책임을 질 수 있습니다.
기타 궁금한 사항은 "디자인트루"(DTG, 디티지)에 문의 주시기 바랍니다.
TEL : 031) 901-5774
"디자인트루" 업무시간 : 월~금, 오전09시~오후06시 (토/일/공휴일 휴무)
'상업공간' 카테고리의 다른 글
| H.. 이동매장 차량디자인 (0) | 2025.07.18 |
|---|---|
| B.. CAFE (0) | 2025.07.18 |
| 59피자 일산점 (0) | 2025.07.18 |
| 59피자 영등포점 (0) | 2025.07.18 |
| A.. 오리요리 전문점 (0) | 2025.07.18 |