ㆍ상업공간
design concept: 유기농 베이커리 "파비올라스"...
CAFE & bakery 의 만남.
부드러운 빵과 따듯한 커피 를 마실수 있는 공간 설계 및 디자인...
브라운 컬러와 원목(오크)의 조화로 따뜻한 분위기 연출.
CI : 빵의 풍미, 그리고 아우라를 형상. 그에따른 이미지를 최소화/로고화 작업.
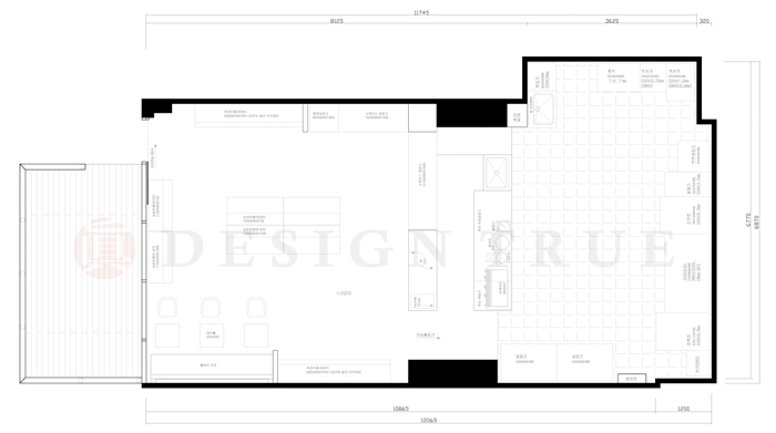
interior 구성 :
23평규모로 홀(좌석공간/베이커리 진열공간), 카운터 & 작업대(커피 작업공간), 주방(베이킹룸), 창고(2F), 외부 테크공간...
"DESIGN TRUE" work...
-현장컨설팅, 현장실측, 디자인(3DC.G), CAD도면(평면도&입면도), 견적/시공 내역서, 시공 스케줄표.
-CI 디자인 & 패키지 디자인, 브랜드인큐베이팅.
-시공- "디자인트루"시공 (관리/감독, 감리, 소장)
*디자인트루 사이트에 게재된 디자인/시공/3D C.G/CAD 관련 이미지 및 디자인의 저작권은 디자인트루 본사에
있으므로 불법도용으로 인한 민형사상 법적 책임을 질 수 있습니다.







-point image-





-3D C.G-




-CAD-


-시공전-


-시공중-




*디자인트루 사이트에 게재된 디자인/시공/3D C.G/CAD 관련 이미지 및 디자인의 저작권은 디자인트루 본사에
있으므로 불법도용으로 인한 민형사상 법적 책임을 질 수 있습니다.
기타 궁금한 사항은 "디자인트루"(DTG, 디티지)에 문의 주시기 바랍니다.
TEL : 031) 901-5774
"디자인트루" 업무시간 : 월~금, 오전09시~오후06시 (토/일/공휴일 휴무)
'상업공간' 카테고리의 다른 글
| 아로마 샵 (0) | 2025.07.18 |
|---|---|
| D.. 떡카페 디자인 (0) | 2025.07.18 |
| H.. 선반 디자인 의뢰 (0) | 2025.07.18 |
| H.. 이동매장 차량디자인 (0) | 2025.07.18 |
| B.. CAFE (0) | 2025.07.18 |